Design: Jellyfish Theatre
Tuesday, October 5, 2010
kobberling and kaltwasser: jellyfish theatre
'the jellyfish theatre'
image © brian benson
berlin-based architects köbberling and kaltwasser have worked alongside volunteers
to create 'the jellyfish theatre'. located in southwark, it is london’s first fully-functioning
theatre made entirely from recycled and reclaimed materials. the project focuses on
energy-efficiency, co-operation and human-scale construction. opening to the public
at the end of august, this temporary structure is made of materials from all sources:
junked theatre sets, reclaimed timber from building sites, market pallets, old kitchen
units that the public brought along.
the project was initiated by theatre production company the red room as part of their 'oikos project'.
'oikos' is ancient greek for house and the root word of economy and ecology. embracing these
principles, they have embarked on constructing 'the jellyfsh theatre' which fuses together disciplines
of public-made art, architecture and performance. in doing so, it also explores how a new sustainable
society can flourish in a world altered by climate change.

detail
image © brian benson
detail
image © brian benson




interior
image © brian benson
interior
image © brian benson
buildup of 'jellyfish theatre'
buildup of 'jellyfish theatre'
buildup of 'jellyfish theatre'
waterbottle wall constructed around the lounge area 
buildup of 'jellyfish theatre'
buildup of 'jellyfish theatre'
image © maja mysliborska 
interior during buildup process
floor being laid 
buildup of 'jellyfish theatre'
buildup of 'jellyfish theatre'
rendering
cross section
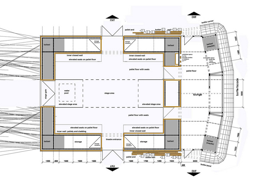
priliminary plan
Labels: design, recycled fashion






0 comments:
Post a Comment